top of page
Planning + Certification
What We Do
Full planning applications
Householder planning applications
Certificates of lawful development (pre + post construction)
Larger home extensions notifications
Community Infrastructure Levy forms
Design + Access Statements
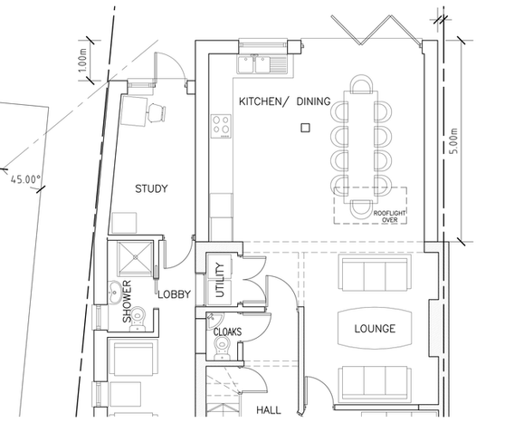
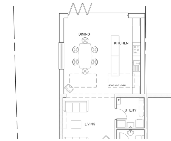
Drawings: location plan; block plan; floor plans (proposed/existing); elevations (proposed/existing); street scenes
bottom of page







